Prora - Modernes Apartment mit Balkon, Meerblick und E-Ladestation - Baltic Sunrise

Exceptional 9.5 (2 reviews)
Residence
Price unavailable
About it
Prora - Modernes Apartment mit Balkon, Meerblick und E-Ladestation - Baltic Sunrise is located in Binz, just a 4-minute walk from Prora Beach and 13 miles from Störtebeker Festival. This property offers access to a balcony, free private parking, and free Wifi. National Park Center Koenigsstuhl is 14 miles away and Ruegendamm is 24 miles from the apartment.
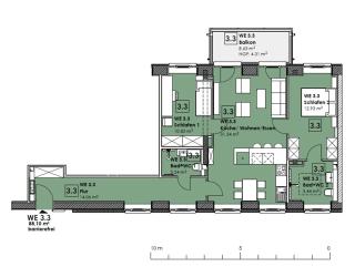
The apartment consists of 2 bedrooms, a living room, a fully equipped kitchen with a dishwasher and a coffee machine, and 2 bathrooms with a shower and a hair dryer. Guests can take in the ambience of the surroundings from an outdoor dining area. The accommodation is non-smoking.
Cape Arkona is 26 miles from the apartment, while Marienkirche Stralsund is 27 miles away.
Its strengths
LAN Wi-Fi
Parking
Location
Südstrand 30118609 Binz
Book
Dates of your stay
Availability with
------------------